insula

The project is a housing scheme designed to last for generations. The goal is to foster a resilient, connected community within a self-sustaining ‘island’, or insula. The design concept was to create pockets of communal spaces, visually expressed with colour, between each housing unit.

Concept Diagrams

Section through communal space

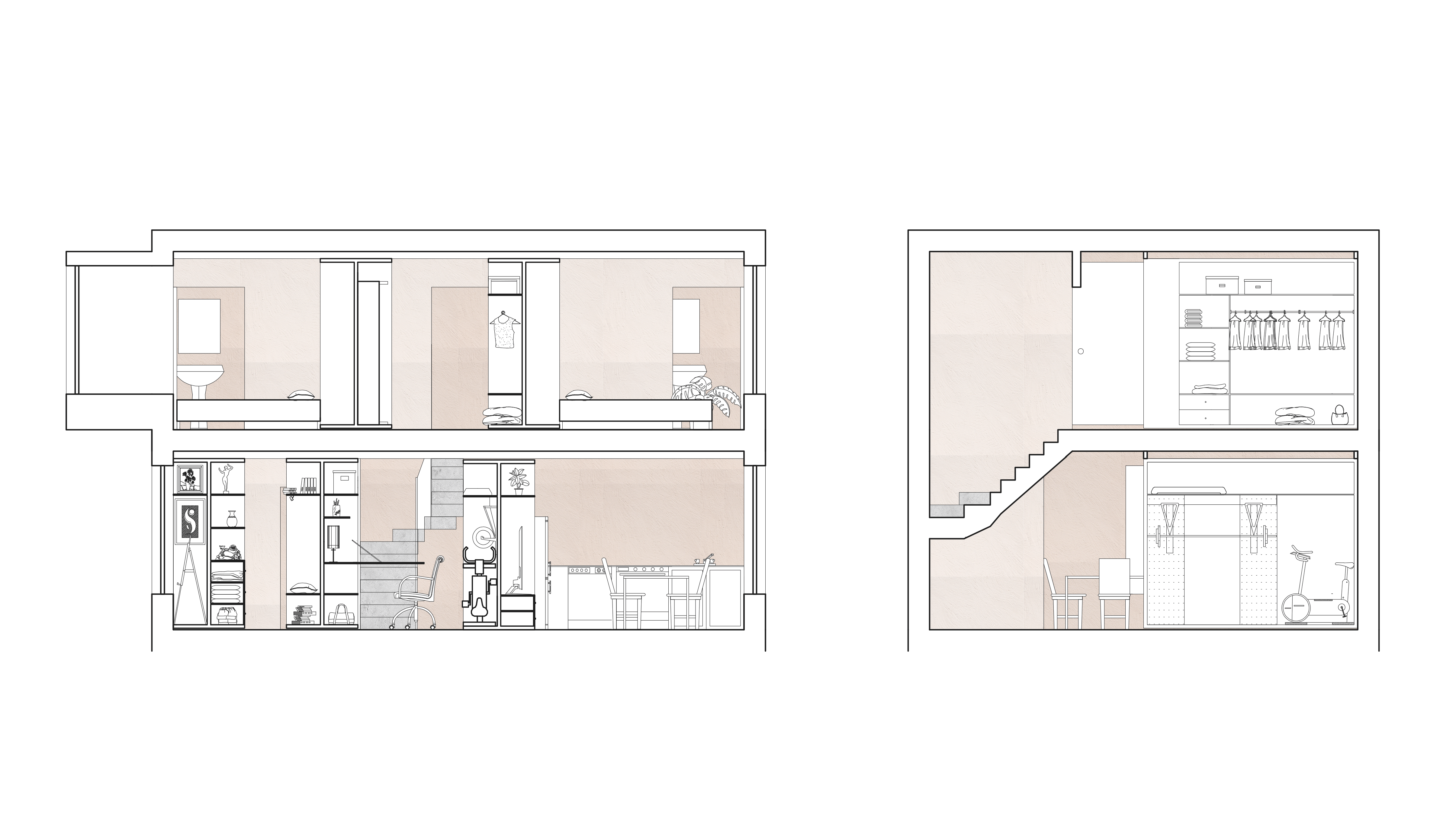
Each apartment has an open floor plan with built-in furniture modules that can be moved to adapt the layout of the space in accordance to the user’s needs.

Sliding furniture modules

Adaptable floor plan

Sections

Apartment interior